Holgerslystveien

Holgerslystveien

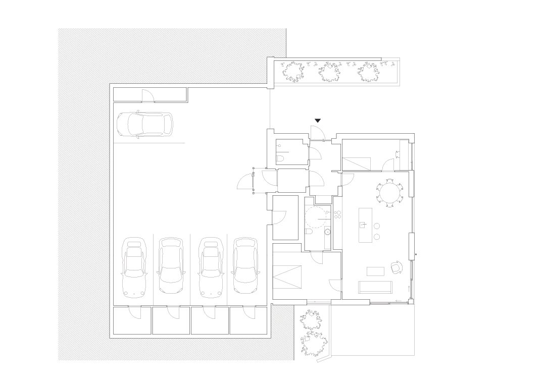
Fem leiligheter med direkte heisadkomst og private innganger fra terreng. Hver planløsning er tegnet til egne utsikts- og solforhold. Alle leilighetene har hjørnebalkonger eller markterrasser, og én garasjeplass.

Foto: Lie Øyen arkitekter

Forrige
Forrige

Blomsterbinderhuset

Neste
Neste

Anneks Kavringen