Hytte Lykkja

Hytte Lykkja

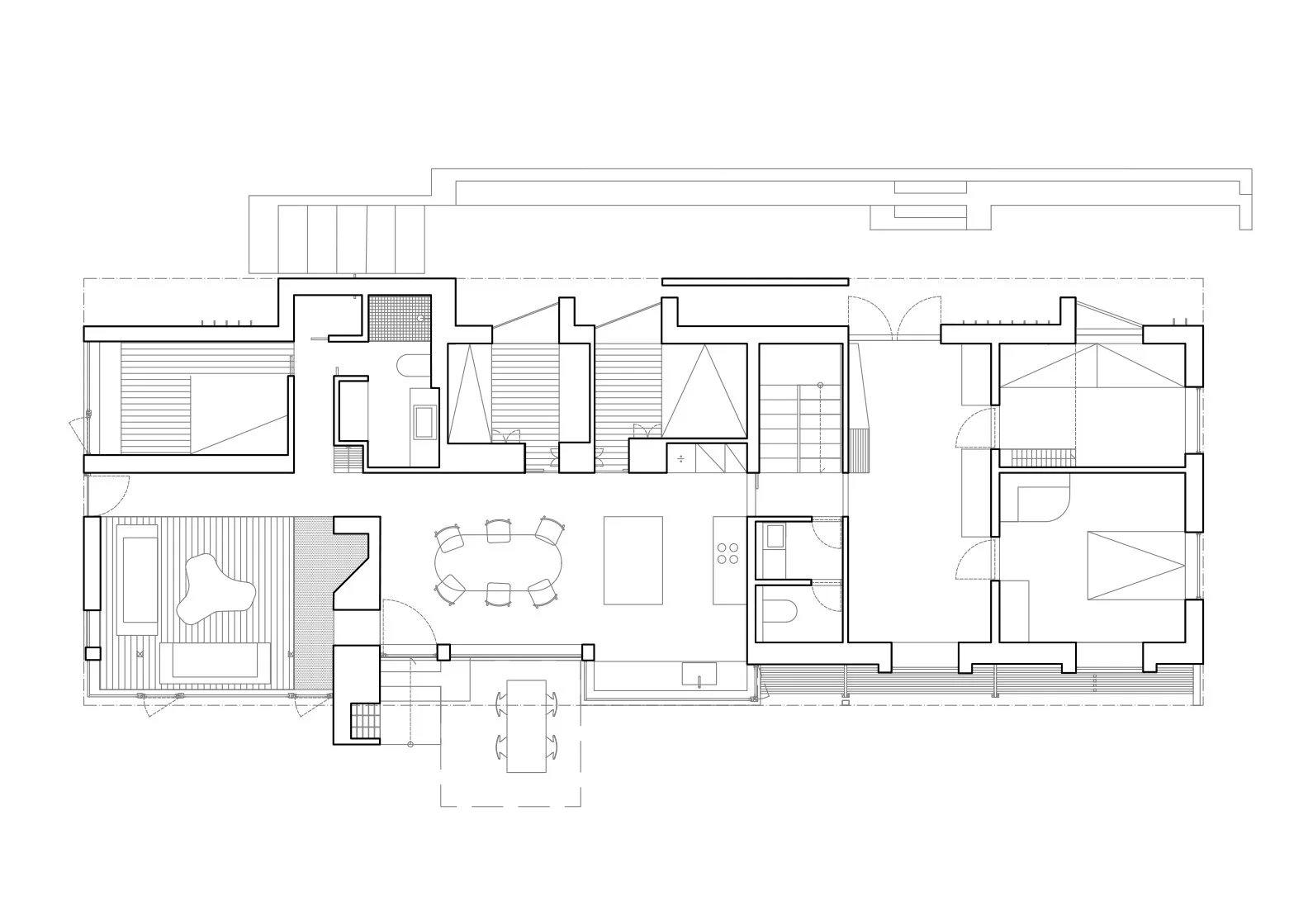
Familiehytta er et langt og smalt volum i tre som følger kotene uten store masseforflytninger i et skrånende terreng. Bæringen i langveggene er trukket en meter inn fra fasadelivet, og tillater utkragede karnapper med kjøkkenbenk og terrasser, praktiske sengeplasser på hems og varierte høytsittende lysinnslipp. Hytta er bygget rundt en ombrukt laftekasse fra 1700-tallet som utgjør en del av de innvendige veggene.

Foto: Lie Øyen arkitekter

Forrige
Forrige

Kampen

Neste
Neste

Kantorveien